
Welcome to
Studio Verbouw
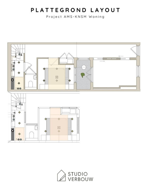
A renovation involves many decisions. What needs to be done and when? Which professional do you need for what? And how do you ensure the final result is exactly what you envisioned?
Many people recognize this: starting a renovation project full of enthusiasm, thinking, "I can handle this quickly," only to discover along the way that it takes much more time and energy than anticipated. You're happy with the result, but afterward, you might say, "I'll do this differently next time."
Studio Verbouw will take that part over for you.
We are Lucas van Berkel and Jorick van der Panne. We're not a large firm, but a two-person studio dedicated to providing personalized guidance. This allows us to respond quickly, truly collaborate with you, and support you throughout the entire process. We serve both private and corporate clients, including complete housing renovations, bathrooms, medical practices, daycare centers, and healthcare facilities. In every situation, we ensure a flawless layout, a technical foundation that professionals can work with, and a feasible schedule.
Services
Renovations involve a lot of work. From the initial sketch to the final execution, we help you maintain an overview and make smart choices. Studio Verbouw offers support throughout every phase: from layout and design to technical support, planning, and coordination. Clear, personalized, and hassle-free.
Our services are modular: you choose only what you need. Whether it's a home, office space, or a complete commercial project, we ensure your renovation is logical, feasible, and well-prepared.
Meet our team
Studio Verbouw is a two-person team that combines technology, design, and project management. We work personally, meticulously, and practically: from smart layouts to technical choices and smooth execution. We'd like to introduce ourselves below.

_edited.png)

























